Listed by Portside Real Estate Group

Listing Sold by Pine Tree Realty of Maine
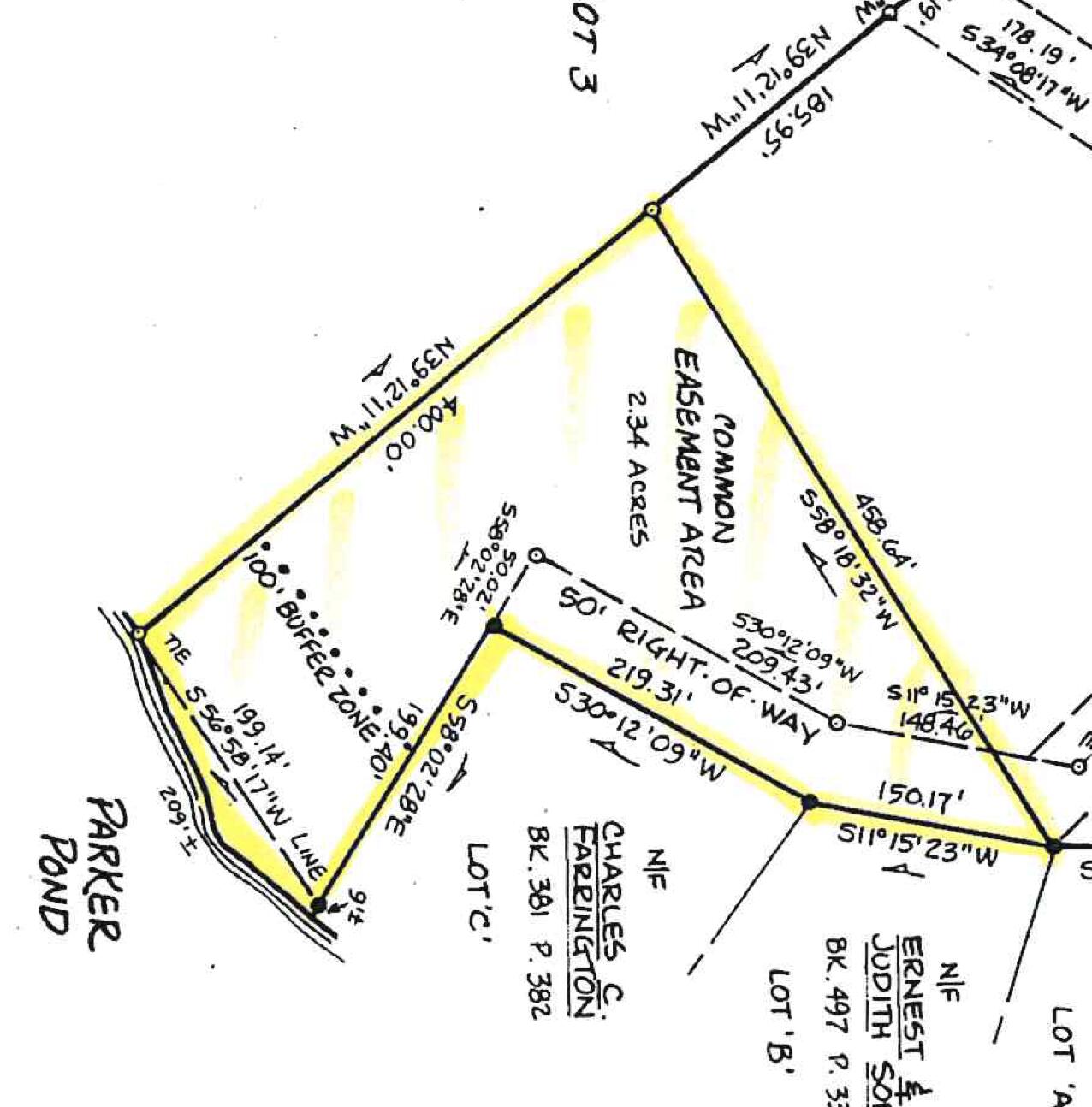
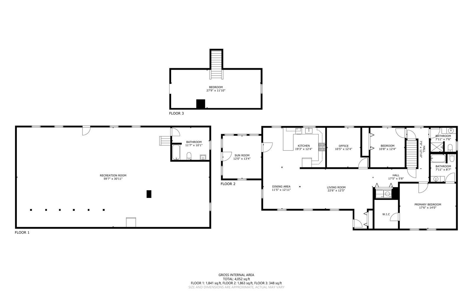
PARKER POND Looking to get away from it all? This is the spot! Meticulously well maintained 3BR/3BA year-round home offers complete privacy in a rural location on this 10.01AC lot that is surrounded by forest lands & nature with a deeded dock slip on a fantastic lake! Home was designed with comfort in mind with a welcoming sunroom porch that opens to an easy floor plan with all that you need on one level. Kitchen offers ample cabinet storage, large peninsula, gas stove and opens to a dining area. Cozy living room featuring hardwood floors and a tiled mudroom entry with a closet off the lovely screen porch. Spacious primary bedroom ensuite with walk-in closet & private full bath is at the end of the hall while a den/home office, laundry, guest bedroom and full guest bath complete the main level. Above is a large guest bedroom with a sitting/craft area and down below in the daylight walk-out basement is a full bath and high ceilings so tons of potential to finish this area off. Detached two-car garage with workbench & storage above, paved driveway, a place to store your boat as well as stand-by generator & internet access which provide for peace of mind all year long. A short distance down the association road is the common lakefront lot with 199' feet on pristine Parker Pond where you can keep your boat in a slip at the dock and go for a swim to the float! This lake is one of central Maine's best kept secrets with limited development along its shores, numerous public islands with campsites to explore, above average crystal clear waters and fantastic sport fishing for trout, salmon and bass! The Headlands Preserve Conservation Area is a short distance down the road and offers miles of hiking trails, while Scapes Cafe and Flying Pond Variety are within a 10 minute drive and Farmington and Winthrop amenities within a half hour. This is a fantastic spot for enjoying year-round recreation and a quiet peaceful pace of life next to the lake!

Listing Tools

Property Details of 34 Main Road

Property Details

Interior Features

Exterior Features

Utilities and Appliances

Map Location

Listing data is derived in whole or in part from the Maine IDX & is for consumers' personal, non commercial use only. Dimensions are approximate and not guaranteed. All data should be independently verified. ©2026 Maine Real Estate Information System, Inc. All Rights Reserved. equal opportunity housing logo   Privacy Policy

Lighthouse Real Estate Group participates in ©2026 Maine Listings Internet Data Exchange program, allowing us to display other Maine IDX Participants' listings. This website does not display complete listings. Certain listings of other real estate brokerage firms have been excluded. Mortgage figures are estimates. Check with your bank or proposed mortgage company for actual interest rates. This product uses the FRED® API but is not endorsed or certified by the Federal Reserve Bank of St. Louis.

Hi there! How can we help you?

Contact us using the form below or give us a call.

Send Us A Message:

I agree to receive marketing and customer service calls and text messages from Lighthouse Real Estate Group. To opt out, you can reply 'stop' at any time or click the unsubscribe link in the emails. Consent is not a condition of purchase. Msg/data rates may apply. Msg frequency varies. Privacy Policy.

Do not fill in this field:

This site is protected by reCAPTCHA and the Google Privacy Policy and Terms of Service apply.

Hi there! How can we help you?

Contact us using the form below or give us a call.

Send Us A Message:

Do not fill in this field:

This site is protected by reCAPTCHA and the Google Privacy Policy and Terms of Service apply.

Hi there! How can we help you?

Contact us using the form below or give us a call.

Send Us A Message:

Do not fill in this field:

This site is protected by reCAPTCHA and the Google Privacy Policy and Terms of Service apply.

Do not fill in this field:

This site is protected by reCAPTCHA and the Google Privacy Policy and Terms of Service apply.

Do not fill in this field:

This site is protected by reCAPTCHA and the Google Privacy Policy and Terms of Service apply.

Do not fill in this field:

This site is protected by reCAPTCHA and the Google Privacy Policy and Terms of Service apply.

$

Do not fill in this field:

This site is protected by reCAPTCHA and the Google Privacy Policy and Terms of Service apply.