Listed by Duston Leddy Real Estate

Listing Sold by Portside Real Estate Group
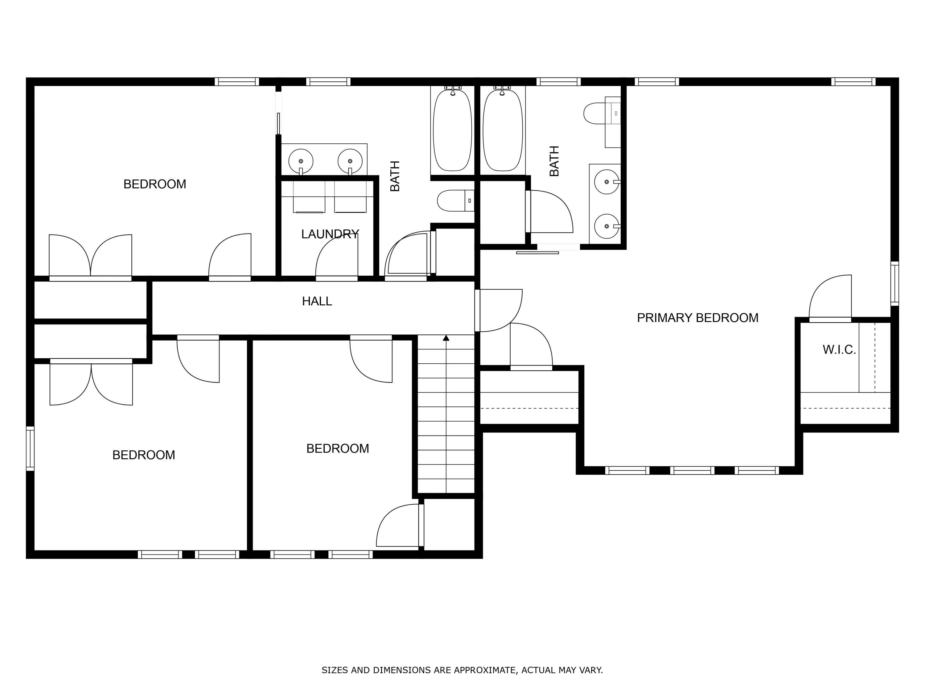
Welcome to this beautifully designed 4-bedroom, 3.5-bath home, where classic colonial charm meets modern convenience. An open-concept layout enhances the flow of natural light, with cherry floors, crown molding, and a designated dining area off the eat in kitchen. At the heart of the home, a cozy living room with a fireplace creates a warm gathering space, while the kitchen features granite countertops, stainless steel appliances and a large pantry with extra prep space. Upstairs, the spacious primary suite offers a private retreat, and a second-floor laundry adds everyday ease. A finished basement, filled with natural light, provides additional flexible living space. Built with energy efficiency in mind, this home offers on-demand heating and heat pumps for year-round comfort. Step outside to a beautiful deck, offering privacy for outdoor entertaining, or unwind on the welcoming front porch while enjoying easy access to Cottage Brook Trails which is part of the Greenbelt Trail system, located right next to the property. Don't miss this opportunity to own a stunning home in Cottage Brook! Open House Saturday, 3/22 10am-12pm & Sunday, 3/23 11am-1pm.

Listing Tools

Property Details of 39 Aster Lane

Property Details

Interior Features

Exterior Features

Utilities and Appliances

Map Location

Listing data is derived in whole or in part from the Maine IDX & is for consumers' personal, non commercial use only. Dimensions are approximate and not guaranteed. All data should be independently verified. ©2025 Maine Real Estate Information System, Inc. All Rights Reserved. equal opportunity housing logo   Privacy Policy

Lighthouse Real Estate Group participates in ©2025 Maine Listings Internet Data Exchange program, allowing us to display other Maine IDX Participants' listings. This website does not display complete listings. Certain listings of other real estate brokerage firms have been excluded. Mortgage figures are estimates. Check with your bank or proposed mortgage company for actual interest rates. This product uses the FRED® API but is not endorsed or certified by the Federal Reserve Bank of St. Louis.

Hi there! How can we help you?

Contact us using the form below or give us a call.

Send Us A Message:

I agree to receive marketing and customer service calls and text messages from Lighthouse Real Estate Group. To opt out, you can reply 'stop' at any time or click the unsubscribe link in the emails. Consent is not a condition of purchase. Msg/data rates may apply. Msg frequency varies. Privacy Policy.

Do not fill in this field:

This site is protected by reCAPTCHA and the Google Privacy Policy and Terms of Service apply.

Hi there! How can we help you?

Contact us using the form below or give us a call.

Send Us A Message:

Do not fill in this field:

This site is protected by reCAPTCHA and the Google Privacy Policy and Terms of Service apply.

Hi there! How can we help you?

Contact us using the form below or give us a call.

Send Us A Message:

Do not fill in this field:

This site is protected by reCAPTCHA and the Google Privacy Policy and Terms of Service apply.

Do not fill in this field:

This site is protected by reCAPTCHA and the Google Privacy Policy and Terms of Service apply.

Do not fill in this field:

This site is protected by reCAPTCHA and the Google Privacy Policy and Terms of Service apply.

Do not fill in this field:

This site is protected by reCAPTCHA and the Google Privacy Policy and Terms of Service apply.

$

Do not fill in this field:

This site is protected by reCAPTCHA and the Google Privacy Policy and Terms of Service apply.