Listed by Real Broker (brandonhowlandrealtor@gmail.com)

Listing Sold by Better Homes & Gardens Real Estate/The Masiello Group
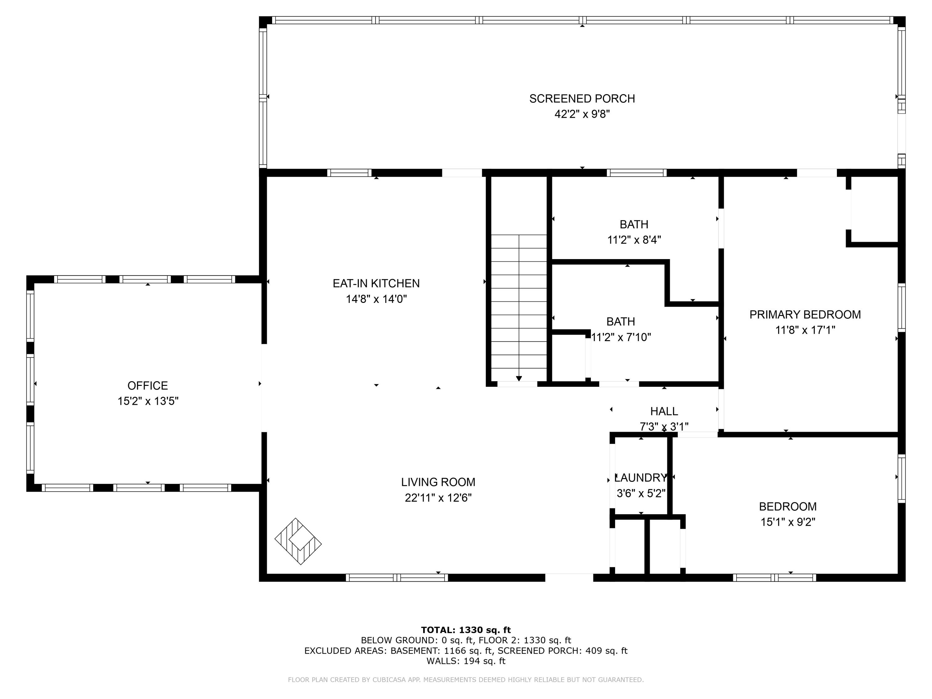
MOTIVATED SELLER! Discover this exceptional 2021-built home, set back on 3 private acres in the peaceful town of Amherst. This energy-efficient, wheelchair-accessible residence features 2 bedrooms, 2 bathrooms, and 1,500 sq ft of open-concept living. Enjoy the expansive wrap-around porch, leading to a screened-in back porch and a bright four-season sunroom. The property boasts established fruit trees and grapes. Inside, comfort is assured with A/C via heat pumps, a wood stove, baseboard heat, and radiant floor heat in both bathrooms. The full, unfinished walkout basement offers potential for customization. A Generac whole-house generator provides year-round security. Minutes from local recreation like Great Pond Outdoor Adventure and Sawmill Woods Golf Course, this home is also an hour from Acadia National Park. Excellent accessibility to Bangor (35 mins), Ellsworth (35 mins), and Bar Harbor (1 hr 15 mins), with Bangor International Airport just 40 minutes away. Experience the best of Maine with its stunning fall foliage, lighthouses, and endless outdoor activities. This unique property won't last. Schedule your showing today!

Listing Tools

Property Details of 612 Airline Road

Property Details

Interior Features

Exterior Features

Utilities and Appliances

Map Location

Listing data is derived in whole or in part from the Maine IDX & is for consumers' personal, non commercial use only. Dimensions are approximate and not guaranteed. All data should be independently verified. ©2026 Maine Real Estate Information System, Inc. All Rights Reserved. equal opportunity housing logo   Privacy Policy

Lighthouse Real Estate Group participates in ©2026 Maine Listings Internet Data Exchange program, allowing us to display other Maine IDX Participants' listings. This website does not display complete listings. Certain listings of other real estate brokerage firms have been excluded. Mortgage figures are estimates. Check with your bank or proposed mortgage company for actual interest rates. This product uses the FRED® API but is not endorsed or certified by the Federal Reserve Bank of St. Louis.

Hi there! How can we help you?

Contact us using the form below or give us a call.

Send Us A Message:

I agree to receive marketing and customer service calls and text messages from Lighthouse Real Estate Group. To opt out, you can reply 'stop' at any time or click the unsubscribe link in the emails. Consent is not a condition of purchase. Msg/data rates may apply. Msg frequency varies. Privacy Policy.

Do not fill in this field:

This site is protected by reCAPTCHA and the Google Privacy Policy and Terms of Service apply.

Hi there! How can we help you?

Contact us using the form below or give us a call.

Send Us A Message:

Do not fill in this field:

This site is protected by reCAPTCHA and the Google Privacy Policy and Terms of Service apply.

Hi there! How can we help you?

Contact us using the form below or give us a call.

Send Us A Message:

Do not fill in this field:

This site is protected by reCAPTCHA and the Google Privacy Policy and Terms of Service apply.

Do not fill in this field:

This site is protected by reCAPTCHA and the Google Privacy Policy and Terms of Service apply.

Do not fill in this field:

This site is protected by reCAPTCHA and the Google Privacy Policy and Terms of Service apply.

Do not fill in this field:

This site is protected by reCAPTCHA and the Google Privacy Policy and Terms of Service apply.

$

Do not fill in this field:

This site is protected by reCAPTCHA and the Google Privacy Policy and Terms of Service apply.